USD 250.000
Semipiso al frente 4 ambientes con dependencia - Recoleta - Muy luminoso!!!

La propiedad indicada se encuentra Reservada
Interesado en la propiedad? Llame +541136304630 ó contactenos

Descripción

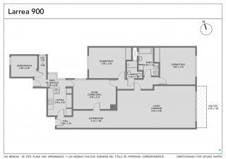
Luminoso semipiso al frente, cuatro ambientes mas dependencia en EXCELENTE ESTADO!!! Comedor principal y gran living con salida al balcón. Orientación este, sol de mañana y luz todo el día!! Pisos de madera de roble de Eslavonia, impecables, tanto en el living como en los dormitorios. Los mismos con amplios placards y aires acondicionados F/C Dos baños completos y refaccionados con sanitarios y grifería de 1° calidad y ventilación natural. Cocina completa con muebles sobre y bajo mesada. Lavadero separado con ventilación natural. Agua caliente central. Edificio de categoría. Apto profesional. Apto crédito Cocheras disponibles a pocos metros!! Con una ubicación estratégica, el departamento se encuentra entre las Avenidas Córdoba y Santa Fe, a una cuadra de Av. Pueyrredón, a 300m de gran cantidad de líneas de colectivos y subte H. Tres cuadras de Plaza Houssay y Hospital de Clínicas. Cercano a los Sanatorios Otamendi, Anchorena, Hospital Alemán, Clínica y Maternidad Suizo Argentina. Ley 5115: accesible - - Toda la información del aviso, incluyendo medidas, precio, impuestos, servicios, etc. son estimativos, sujetos a modificación y no vinculantes, según lo dispuesto en el art. 973, Cód. Civ. y Com.


Recoleta, Capital Federal, Capital Federal

Zona/Barrio: Recoleta